BRICK RENTAL HOUSE

CONCEPT
Design Sourceが提案する
新しいライフスタイル
家族で、仕事で、仲間とシェアして、色々な形の住まい方
自分たちのライフスタイルに合わせ
ラフで自由に暮らせる賃貸戸建て
賃貸オ-ナ-様向け規格住宅です
もちろん個人の住居としてお考えの方も建築可能
オルジナル無垢オークのフレームキッチン、
ビンテージのダイニングテーブルやダイニングチェア、
照明やソファなど標準装備
Design Sourceオリジナル建物のコンセプト
住みたい家に住もう
ただ家という空間をつくるのでは無く、
その中身がギッシリ詰まった家づくり
住みたい賃貸住宅が無いのなら
こんな賃貸住宅なら住んでみたい!を形にしました
Design Sourceオリジナル建物BRICK RENTAL HOUSE
DETAIL
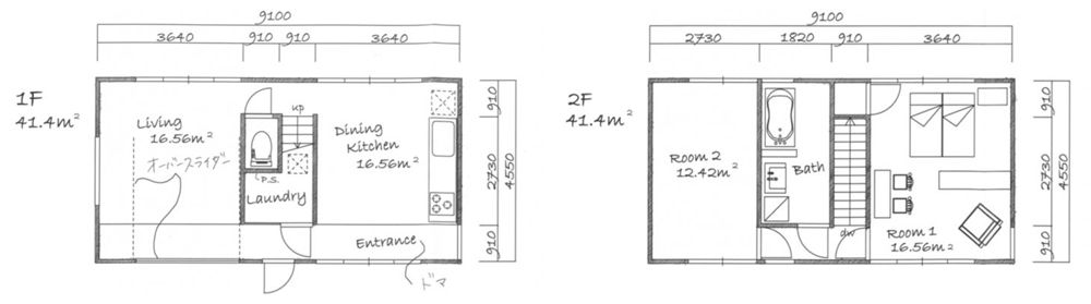
■延床面積/ 1F:41.4㎡ 2F:41.4㎡(家具・照明付)

FLOOR PLAN

※イラストと実際の仕様が異なる場合があります
POINT
ENTRANCE DOMA

ドアを開けると横に長い土間エリア。自転車を置いたり、靴を脱ぐスペースやペットのお水置き場、どう使うかは自由です。
LIVING

リビングにはオーバースライダーシャッターを装備。開け放ち外とのつながりを楽しめます。まるでガレージのようなワクワクが止まらないリビングです。
DINING KITCHEN

男前なキッチンにビンテージ家具を配置したダイニングエリア。使い込むほど味わいを増していく、無垢オークのオリジナルのフレームキッチン。
BATHROOM

白を基調としたタイル貼りのシンプルで飽きのこない洗面・お風呂スペース。置き型バスタブなどインテリアの細部にこだわり、ホテルのようなリラックスできる空間に。
資料請求はこちら







